Mietwohnung in 8010 Graz
Zwei - Zimmer- Wohnung - Waltendorfer Hauptstraße 12 Top 9Mietwohnung Graz
2 Zimmer
1 Badezimmer
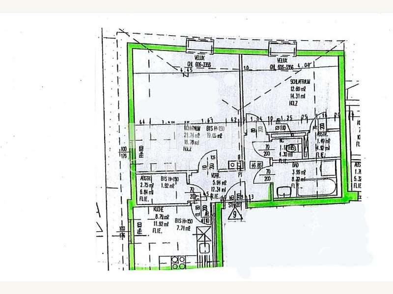
Wohnfläche: 58,47 m²
1 seperates WC
Einbauküche
Badewanne
Zentralheizung
Abstellraum
Parkett
Verfügbar: sofort.
Mietwohnung mieten - Graz
Miete: € 587,12
Wohnfläche: 58,47 m²
2 Zimmer
Wohnfläche: 58,47 m²
2 Zimmer
Zwei - Zimmer- Wohnung - Waltendorfer Hauptstraße 12 Top 9.
Zur Vermietung steht eine charmante Zwei - Zimmer Wohnung in Graz. Die Wohnung befindet sich in günstiger Lage und verfügt über eine Wohnfläche von ca. 58,4 m². Sie besteht aus zwei Zimmern, darunter ein Schlafzimmer. Der Boden ist mit Parkett ausgelegt und die Küche ist bereits möbliert. Die Wohnung eignet sich ideal für Paare oder kleine Familien, die eine moderne und gut geschnittene Wohnung in Graz suchen. Verpassen Sie nicht die Gelegenheit, diese Immobilie zu mieten und kontaktieren Sie uns noch heute, um einen Besichtigungstermin zu vereinbaren.
Der Immobilienmakler erklärt, dass er – entgegen dem in der Immobilienwirtschaft üblichen Geschäftsgebrauch des Doppelmaklers – einseitig nur für den Vermieter tätig ist.
Infrastruktur / EntfernungenGesundheit
Arzt <500m
Apotheke <500m
Klinik <1.500m
Krankenhaus <2.000m
Kinder & Schulen
Schule <500m
Kindergarten <500m
Universität <1.000m
Höhere Schule <2.000m
Nahversorgung
Supermarkt <500m
Bäckerei <500m
Einkaufszentrum <500m
Sonstige
Geldautomat <500m
Bank <500m
Post <1.000m
Polizei <500m
Verkehr
Bus <500m
Straßenbahn <1.000m
Autobahnanschluss <4.000m
Bahnhof <2.000m
Flughafen <9.000m
Angaben Entfernung Luftlinie / Quelle: OpenStreetMap Waltendorfer Hauptstraße 12 Abstellraum
Tiefgarage optional
Energieausweisdaten: Heizwärmebedarf: 114.4, Gesamtenergieeffizienz-Faktor: 1.58, HWB Klasse: D, fGEE Klasse: C.
Objektnummer: 1939/124971
Zur Vermietung steht eine charmante Zwei - Zimmer Wohnung in Graz. Die Wohnung befindet sich in günstiger Lage und verfügt über eine Wohnfläche von ca. 58,4 m². Sie besteht aus zwei Zimmern, darunter ein Schlafzimmer. Der Boden ist mit Parkett ausgelegt und die Küche ist bereits möbliert. Die Wohnung eignet sich ideal für Paare oder kleine Familien, die eine moderne und gut geschnittene Wohnung in Graz suchen. Verpassen Sie nicht die Gelegenheit, diese Immobilie zu mieten und kontaktieren Sie uns noch heute, um einen Besichtigungstermin zu vereinbaren.
Der Immobilienmakler erklärt, dass er – entgegen dem in der Immobilienwirtschaft üblichen Geschäftsgebrauch des Doppelmaklers – einseitig nur für den Vermieter tätig ist.
Infrastruktur / EntfernungenGesundheit
Arzt <500m
Apotheke <500m
Klinik <1.500m
Krankenhaus <2.000m
Kinder & Schulen
Schule <500m
Kindergarten <500m
Universität <1.000m
Höhere Schule <2.000m
Nahversorgung
Supermarkt <500m
Bäckerei <500m
Einkaufszentrum <500m
Sonstige
Geldautomat <500m
Bank <500m
Post <1.000m
Polizei <500m
Verkehr
Bus <500m
Straßenbahn <1.000m
Autobahnanschluss <4.000m
Bahnhof <2.000m
Flughafen <9.000m
Angaben Entfernung Luftlinie / Quelle: OpenStreetMap Waltendorfer Hauptstraße 12 Abstellraum
Tiefgarage optional
Energieausweisdaten: Heizwärmebedarf: 114.4, Gesamtenergieeffizienz-Faktor: 1.58, HWB Klasse: D, fGEE Klasse: C.
Objektnummer: 1939/124971
Preisdetails:
Gesamtmiete: 587,12
Gesamtbelastung: 692,96
Gesamtmiete Netto: 533,75
Gesamtmiete USt: 53,37
Gesamtbelastung Netto: 621,95
Betriebskosten Netto: 159,54
Heizkosten Netto: 88,2
Heizkosten USt: 17,64
Summe Miete Netto: 374,21
Summe Miete USt: 37,42
Kaution: 3 Bruttomonatsmieten
Lage: Wohnung in 8010 Graz
Lageangabe nur ungefähr, die genaue Adresse erfahren Sie beim Anbieter der Immobilie.Etage: 1
Etagenanzahl: 2
Waltendorfer Hauptstraße 12










