Doppelhaushälfte in 3384 Haunoldstein
Doppelhaushälften Haunoldstein!Miethaus Haunoldstein
4 Zimmer
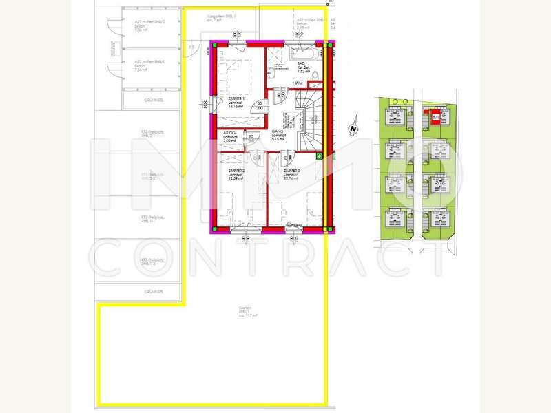
3 Schlafzimmer
1 Badezimmer
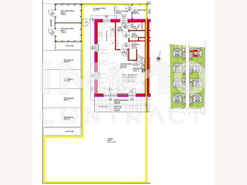
Wohnfläche: 111,65 m²
Balkone/Terrassen: 13,22 m²
Garten: 124 m²
1 seperates WC
1 Terrasse
Fußbodenheizung
Gartennutzung
Abstellraum
Gäste WC
Verfügbar: Herbst 2025.
Doppelhaushälfte mieten - Haunoldstein
Miete: € 1.230,61
Wohnfläche: 111,65 m²
4 Zimmer
Wohnfläche: 111,65 m²
4 Zimmer
Doppelhaushälften Haunoldstein!
Miete mit Kaufoption, Erstbezug, Fertigstellung Oktober 2025!
Hier wurden 16 Doppelhaushälften mit großzügigen Freiflächen errichtet.
Die Erschließung der Reihenhäuser erfolgt über überdachte Eingangsbereiche, welche mit einem Außenabstellraum kombiniert sind.
Die Komponenten der Haustechnik sind unter der Treppe situiert.
Ebenso ist auch das helle Wohnzimmer mit der Kochnische vom Vorraum aus direkt begehbar.
Im Obergeschoß befinden sich drei Schlafzimmer und ein Bad mit Badewanne.
Ausstattung:
Fußbodenheizung
Luft-Wasser Wärmepumpe
Photovoltaikanlage
kontrollierte Wohnraumlüftung
usw.
Weiters werden jeder Wohneinheit zwei freie KFZ-Stellplätze zugeordnet.
Für jede Wohneinheit ist außerdem ein zusätzlicher Außenabstellraum neben den KFZ-Stellplätzen vorgesehen, der auch für Gartengeräte, Mülltonnen und Fahrräder genutzt werden kann.
Besichtigungen ab August 2025, Fertigstellung ab Oktober 2025! Die angebotene Doppelhaushälfte befindet sich in der idyllischen Gemeinde Haunoldstein im Herzen von Niederösterreich. Eingebettet in eine malerische Landschaft, bietet dieser Ort eine perfekte Symbiose aus Naturnähe und hervorragender Anbindung an die umliegenden Städte. Haunoldstein erfreut sich einer ruhigen und familienfreundlichen Atmosphäre mit einer gut ausgebauten Infrastruktur, die alle Annehmlichkeiten des täglichen Lebens abdeckt.
Energieausweisdaten: Heizwärmebedarf: 27.00, Gesamtenergieeffizienz-Faktor: 0.53, HWB Klasse: B, fGEE Klasse: A++.
Objektnummer: 131410_15
Miete mit Kaufoption, Erstbezug, Fertigstellung Oktober 2025!
Hier wurden 16 Doppelhaushälften mit großzügigen Freiflächen errichtet.
Die Erschließung der Reihenhäuser erfolgt über überdachte Eingangsbereiche, welche mit einem Außenabstellraum kombiniert sind.
Die Komponenten der Haustechnik sind unter der Treppe situiert.
Ebenso ist auch das helle Wohnzimmer mit der Kochnische vom Vorraum aus direkt begehbar.
Im Obergeschoß befinden sich drei Schlafzimmer und ein Bad mit Badewanne.
Ausstattung:
Fußbodenheizung
Luft-Wasser Wärmepumpe
Photovoltaikanlage
kontrollierte Wohnraumlüftung
usw.
Weiters werden jeder Wohneinheit zwei freie KFZ-Stellplätze zugeordnet.
Für jede Wohneinheit ist außerdem ein zusätzlicher Außenabstellraum neben den KFZ-Stellplätzen vorgesehen, der auch für Gartengeräte, Mülltonnen und Fahrräder genutzt werden kann.
Besichtigungen ab August 2025, Fertigstellung ab Oktober 2025! Die angebotene Doppelhaushälfte befindet sich in der idyllischen Gemeinde Haunoldstein im Herzen von Niederösterreich. Eingebettet in eine malerische Landschaft, bietet dieser Ort eine perfekte Symbiose aus Naturnähe und hervorragender Anbindung an die umliegenden Städte. Haunoldstein erfreut sich einer ruhigen und familienfreundlichen Atmosphäre mit einer gut ausgebauten Infrastruktur, die alle Annehmlichkeiten des täglichen Lebens abdeckt.
Energieausweisdaten: Heizwärmebedarf: 27.00, Gesamtenergieeffizienz-Faktor: 0.53, HWB Klasse: B, fGEE Klasse: A++.
Objektnummer: 131410_15
Preisdetails:
Miete: 1.230,61
Gesamtmiete: 1.230,61
Gesamtbelastung: 1.230,61
Hauptmietzins Netto: 1.118,74
Hauptmietzins USt: 111,87
Gesamtbelastung Netto: 1.118,74
Summe Miete Netto: 1.118,74
Summe Miete USt: 111,87
Miete zzgl. NK: 1.118,74
Kaltmiete: 1.230,61
Preise zuzüglich MWSt
Lage: Haus in 3384 Haunoldstein
Die genaue Adresse erfahren Sie beim Anbieter dieser Immobilie.Region: Groß Sierning
Die angebotene Doppelhaushälfte befindet sich in der idyllischen Gemeinde Haunoldstein im Herzen von Niederösterreich. Eingebettet in eine malerische Landschaft, bietet dieser Ort eine perfekte Symbiose aus Naturnähe und hervorragender Anbindung an die umliegenden Städte. Haunoldstein erfreut sich einer ruhigen und familienfreundlichen Atmosphäre mit einer gut ausgebauten Infrastruktur, die alle Annehmlichkeiten des täglichen Lebens abdeckt.














