Büro/Praxis in 1230 Wien
FIRMENSTANDORT-Büros in verschieden Größen oder ganze Etage im 2.OG in Wien 23 - gesamt 661 m²- teilbar ab ca. 23 m²Mietobjekt Wien
Gesamtfläche: 337 m²
Bürofläche: 337 m²
Teilbar ab: 23 m²
6 seperate WC
Teilmöbliert
Einbauküche
Zentralheizung
WG geeignet
Laminat
Verfügbar: ab sofort.
Büro/Praxis mieten - Wien
Miete: € 10,30
Nettomiete: € 10,30
Gesamtfläche: 337 m²
Nettomiete: € 10,30
Gesamtfläche: 337 m²
FIRMENSTANDORT-Büros in verschieden Größen oder ganze Etage im 2.OG in Wien 23 - gesamt 661 m²- teilbar ab ca. 23 m².
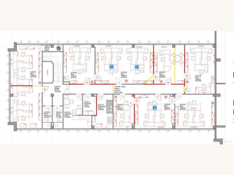
Fläche im 2.OG: 331 m². Eine Teilung - Etagenweise oder in Kleinbüros ist möglich. Pro Etage befinden sich 2 Sanitärbereiche, sowie eine Küche mit Aufenthaltsraum. Die Büroräume sind unmöbliert, jedoch mit Beleuchtung ausgestattet. In den Betriebskosten sind die Stromkosten inkludiert. Parkplätze können um Euro 82,-netto /Monat angemietet werden. Eine Halle mit 368 m² +8,45 Meter Raumhöhe kann gesondert angemietet werden- siehe www.brandstaetter.at/2100163338 Parkplätze sind um 82 Euro netto / Stellplatz anmietbar. Weiters kann eine Halle mit 368 m² gesondert angemietet werden. Eine Anmietung ab ca. 23 m² zzgl. anteiliger Allgemeinfläche ist möglich. Autobahnabfahrt Inzersdorf, beste Infrastruktur, Nähe Triesterstrasse , Nähe S-O Tangente, Industriezentrum
Energieausweisdaten: Heizwärmebedarf: 64.16, Gesamtenergieeffizienz-Faktor: 1.15, HWB Klasse: C, fGEE Klasse: C.
Objektnummer: O2100167005
Fläche im 2.OG: 331 m². Eine Teilung - Etagenweise oder in Kleinbüros ist möglich. Pro Etage befinden sich 2 Sanitärbereiche, sowie eine Küche mit Aufenthaltsraum. Die Büroräume sind unmöbliert, jedoch mit Beleuchtung ausgestattet. In den Betriebskosten sind die Stromkosten inkludiert. Parkplätze können um Euro 82,-netto /Monat angemietet werden. Eine Halle mit 368 m² +8,45 Meter Raumhöhe kann gesondert angemietet werden- siehe www.brandstaetter.at/2100163338 Parkplätze sind um 82 Euro netto / Stellplatz anmietbar. Weiters kann eine Halle mit 368 m² gesondert angemietet werden. Eine Anmietung ab ca. 23 m² zzgl. anteiliger Allgemeinfläche ist möglich. Autobahnabfahrt Inzersdorf, beste Infrastruktur, Nähe Triesterstrasse , Nähe S-O Tangente, Industriezentrum
Energieausweisdaten: Heizwärmebedarf: 64.16, Gesamtenergieeffizienz-Faktor: 1.15, HWB Klasse: C, fGEE Klasse: C.
Objektnummer: O2100167005
Preisdetails:
Miete: 12,5
Gesamtmiete: 10,3
Gesamtbelastung: 12,5
Gesamtmiete Netto: 10,3
Gesamtbelastung Netto: 12,5
Betriebskosten Netto: 1,8
Heizkosten Netto: 2,2
Summe Miete Netto: 8,5
Miete zzgl. NK: 8,5
Nebenkosten: 1,8
Heizkosten: 2,2
Heizkosten in Miete enthalten
Kaution: 3,-
Lage: Gewerbeimmobilie in 1230 Wien
Lageangabe nur ungefähr, die genaue Adresse erfahren Sie beim Anbieter der Immobilie.Etage: 2
Etagenanzahl: 3
Autobahnabfahrt Inzersdorf, beste Infrastruktur, Nähe Triesterstrasse , Nähe S-O Tangente, Industriezentrum
















