Büro/Praxis in 1120 Wien
ERSTBEZUG - Moderne Büroflächen mit Terrassen im Dachgeschoss - Büro 03Mietobjekt Wien
1 Badezimmer
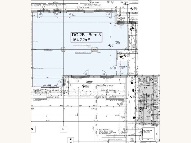
Nutzfläche: 164,22 m²
Balkone/Terrassen: 49,63 m²
5 seperate WC
2 Terrassen
Dusche
Pissoir
Klimaanlage
Fußbodenheizung
Lift
Abstellraum
DV-Verkabelung
Parkplatz
Verfügbar: ab sofort.
Büro/Praxis mieten - Wien
Nettomiete: € 3.564,58
Nutzfläche: 164,22 m²
Nutzfläche: 164,22 m²
ERSTBEZUG - Moderne Büroflächen mit Terrassen im Dachgeschoss - Büro 03.
Zur Vermietung gelangt eine moderne Bürofläche in einem historischen Gebäude! Das alte Fabrikflair in Kombination mit dem neuen Dachgeschoss ergibt eine angenehme Arbeitsatmosphäre.
VIDEORUNDGANG
LINK VIDEORUNDGANG: https://storage.justimmo.at/video/1080p/NTE5D6N1tcGw9ocaAt1yT.mp4
Eckdaten
Bürofläche: ca. 164,22m²
Terrasse: ca. 49,63m²
Räume: sind nach belieben veränderbar
WC: 5 Herren & 3 Damen
Dusche: 1
Lift: Personenlift (barrierefrei)
Internet/Telefon: Glasfaser ist im Haus verlegt
Parkplätze: Verfügbar (á € 120,-)
Lage und Infrastruktur
Die gewerblich genutzte Immobilie liegt im 12. Wiener Gemeindebezirk in unmittelbarer Nähe zum Wilhelmsdorfer Park. In der Umgebung gibt es zahlreiche Restaurants, Supermärkte (wie Eurospar, Billa usw.), eine Apotheke sowie mehrere Drogeriemärkte. Das Bürogebäude ist hervorragend an den öffentlichen Nahverkehr angebunden. Die U-Bahn-Linie U4 (Station Längenfeldgasse) ist leicht erreichbar, und die S-Bahn- sowie U-Bahn-Station Wien Meidling liegt nur etwa 10 Gehminuten entfernt. Direkt vor dem Gebäude befindet sich eine Haltestelle für die Buslinie 63A und die Straßenbahnlinie 62.
Details zur öffentlichen Anbindung:
U-Bahn: U4 (Station Längenfeldgasse), U6 (Station Meidling)
Schnellbahn/Regionalzüge: Station Meidling (mehrere Linien)
Bus: 63A (Haltestelle Flurschützstraße/Längenfeldgasse)
Straßenbahn: 62 (Haltestelle Flurschützstraße/Längenfeldgasse)
Die zentrale Lage und die exzellente Verkehrsanbindung machen die Immobilie zu einem attraktiven Standort.
Kontakt
Für Fragen und Besichtigungen kontaktieren Sie bitte Herrn Georg Zoltan MSc, unter +43 676 88 03 03 01 oder unter georg.zoltan@plech.at
Infrastruktur / Entfernungen
Gesundheit
Arzt <500m
Apotheke <500m
Klinik <1.000m
Krankenhaus <1.000m
Kinder & Schulen
Schule <500m
Kindergarten <500m
Universität <1.000m
Höhere Schule <500m
Nahversorgung
Supermarkt <500m
Bäckerei <500m
Einkaufszentrum <1.000m
Sonstige
Geldautomat <1.000m
Bank <1.000m
Post <500m
Polizei <1.000m
Verkehr
Bus <500m
U-Bahn <1.000m
Straßenbahn <500m
Bahnhof <1.000m
Autobahnanschluss <3.000m
Angaben Entfernung Luftlinie / Quelle: OpenStreetMap
Energieausweisdaten: Heizwärmebedarf: 37.7, Gesamtenergieeffizienz-Faktor: 0.56, HWB Klasse: B, fGEE Klasse: A+.
Objektnummer: 5372
Zur Vermietung gelangt eine moderne Bürofläche in einem historischen Gebäude! Das alte Fabrikflair in Kombination mit dem neuen Dachgeschoss ergibt eine angenehme Arbeitsatmosphäre.
VIDEORUNDGANG
LINK VIDEORUNDGANG: https://storage.justimmo.at/video/1080p/NTE5D6N1tcGw9ocaAt1yT.mp4
Eckdaten
Bürofläche: ca. 164,22m²
Terrasse: ca. 49,63m²
Räume: sind nach belieben veränderbar
WC: 5 Herren & 3 Damen
Dusche: 1
Lift: Personenlift (barrierefrei)
Internet/Telefon: Glasfaser ist im Haus verlegt
Parkplätze: Verfügbar (á € 120,-)
Lage und Infrastruktur
Die gewerblich genutzte Immobilie liegt im 12. Wiener Gemeindebezirk in unmittelbarer Nähe zum Wilhelmsdorfer Park. In der Umgebung gibt es zahlreiche Restaurants, Supermärkte (wie Eurospar, Billa usw.), eine Apotheke sowie mehrere Drogeriemärkte. Das Bürogebäude ist hervorragend an den öffentlichen Nahverkehr angebunden. Die U-Bahn-Linie U4 (Station Längenfeldgasse) ist leicht erreichbar, und die S-Bahn- sowie U-Bahn-Station Wien Meidling liegt nur etwa 10 Gehminuten entfernt. Direkt vor dem Gebäude befindet sich eine Haltestelle für die Buslinie 63A und die Straßenbahnlinie 62.
Details zur öffentlichen Anbindung:
U-Bahn: U4 (Station Längenfeldgasse), U6 (Station Meidling)
Schnellbahn/Regionalzüge: Station Meidling (mehrere Linien)
Bus: 63A (Haltestelle Flurschützstraße/Längenfeldgasse)
Straßenbahn: 62 (Haltestelle Flurschützstraße/Längenfeldgasse)
Die zentrale Lage und die exzellente Verkehrsanbindung machen die Immobilie zu einem attraktiven Standort.
Kontakt
Für Fragen und Besichtigungen kontaktieren Sie bitte Herrn Georg Zoltan MSc, unter +43 676 88 03 03 01 oder unter georg.zoltan@plech.at
Infrastruktur / Entfernungen
Gesundheit
Arzt <500m
Apotheke <500m
Klinik <1.000m
Krankenhaus <1.000m
Kinder & Schulen
Schule <500m
Kindergarten <500m
Universität <1.000m
Höhere Schule <500m
Nahversorgung
Supermarkt <500m
Bäckerei <500m
Einkaufszentrum <1.000m
Sonstige
Geldautomat <1.000m
Bank <1.000m
Post <500m
Polizei <1.000m
Verkehr
Bus <500m
U-Bahn <1.000m
Straßenbahn <500m
Bahnhof <1.000m
Autobahnanschluss <3.000m
Angaben Entfernung Luftlinie / Quelle: OpenStreetMap
Energieausweisdaten: Heizwärmebedarf: 37.7, Gesamtenergieeffizienz-Faktor: 0.56, HWB Klasse: B, fGEE Klasse: A+.
Objektnummer: 5372
Preisdetails:
Gesamtmiete Netto: 3.564,58
Gesamtmiete USt: 712,91
Gesamtbelastung Netto: 3.668,4
Betriebskosten Netto: 276,86
Heizkosten Netto: 103,82
Heizkosten USt: 20,76
Summe Miete Netto: 3.287,72
Summe Miete USt: 657,54
Miete pro m² zzgl. NK: 20,02
Kaution: 3 Bruttomonatsmieten
Provision: 3 Bruttomonatsmieten zzgl. 20% USt.
Lage: Gewerbeimmobilie in 1120 Wien
Lageangabe nur ungefähr, die genaue Adresse erfahren Sie beim Anbieter der Immobilie.Region: U4 Längenfeldgasse / S-Bahn Meidling
Etage: 4


















